Размер:
AAA
Цвет: CCC
Изображения Вкл.Выкл.
Обычная версия сайта
Поиск
г. Радужный, 1 квартал, д.55
Адрес здания администрации
radugn@avo.ru
Электронная почта

11.11.2013

Администрации ЗАТО г. Радужный

В целях улучшения санитарно-эпидемиологической обстановки, оптимизации системы уборки и благоустройства территории города, в соответствии с Федеральными законами от 24.06.1998 г. № 89-ФЗ «Об отходах производства и потребления», от 10.01.2002 г. № 7-ФЗ «Об охране окружающей среды», руководствуясь Федеральным законом от 06.10.2003 г. № 131-ФЗ «Об общих принципах организации местного самоуправления в Российской Федерации», статьей 36 Устава муниципального образования ЗАТО г. Радужный,

П О С Т А Н О В Л Я Ю :

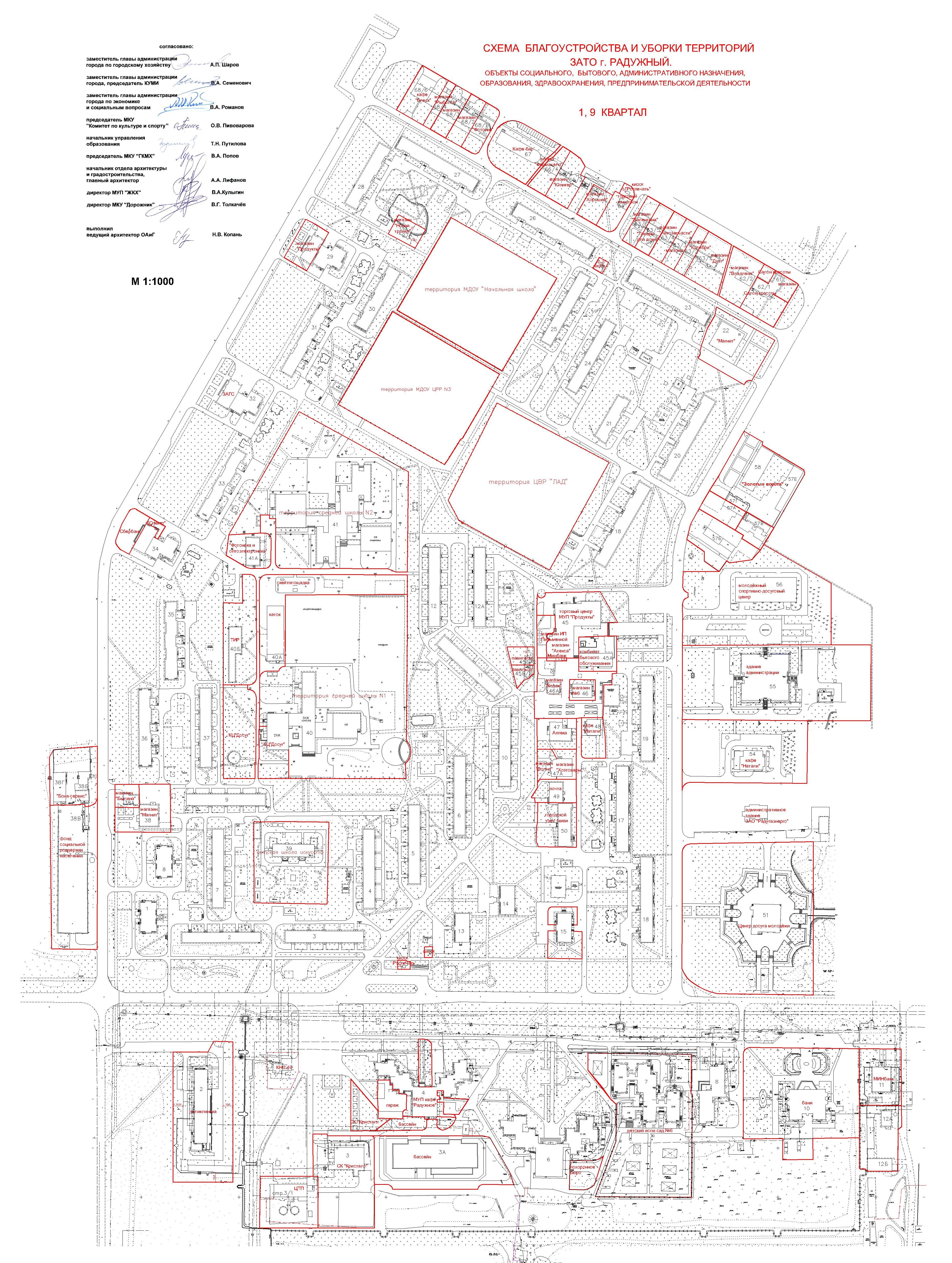
1.    Утвердить  «Схему благоустройства  и  уборки  территории  ЗАТО г. Радужный (объекты социального,   бытового,   административного назначения,  образования,  здравоохранения, предпринимательской деятельности)»  на двух листах (приложение) – 1, 9 квартал и 3 квартал (далее – «Схема»).

2. Рекомендовать руководителям  организаций всех форм собственности, и субъектам предпринимательской деятельности руководствоваться при  осуществлении уборки и благоустройства территорий утверждённой настоящим постановлением  Схемой.

3. Контроль за исполнением настоящего постановления возложить на заместителя главы администрации  города по городскому хозяйству.

4. Настоящее постановление вступает в силу со дня его опубликования в информационном бюллетене администрации ЗАТО г. Радужный  «Радуга-информ» и подлежит размещению на официальном сайте ЗАТО г. Радужный.
         

 


Постановление:

Постановление №1605 p_1605.PDF 68.06 KB 25.03.2015 17:50:19 Загрузить

Приложения:
1 2602.jpg 3 MB 25.03.2015 17:50:19 Загрузить
2 2603.jpg 2.12 MB 25.03.2015 17:50:19 Загрузить


Возврат к списку


Премия "Служение"
Федеральная налоговая служба
Голосование по оценке населением эффективности деятельности руководителей ОМС
Госуслуги
Планировка территории